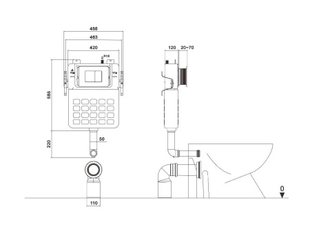
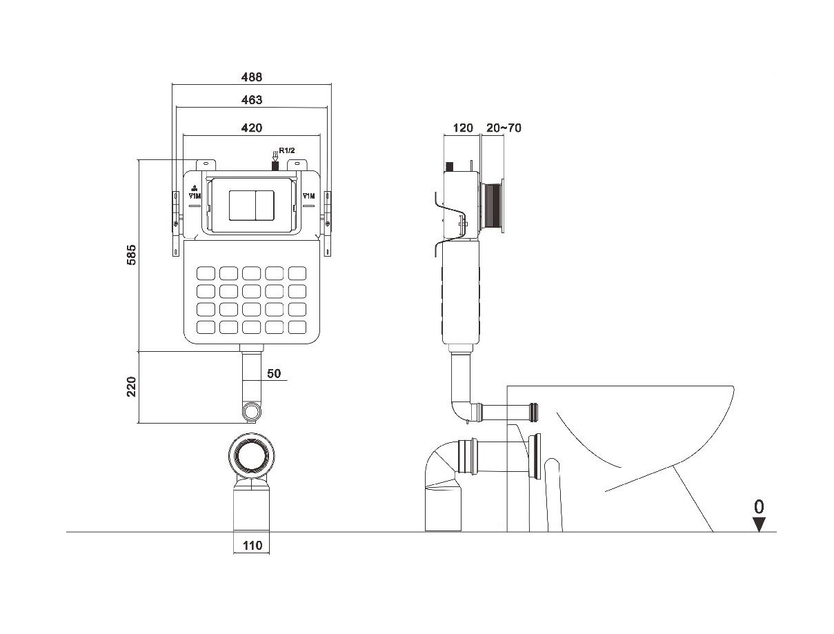
Инсталляция CR333 для приставных унитазов бренда Ceruttispa предназначена для крепления к капитальной стене/гипсокартону. Монтажная глубина составляет всего 120 мм, что позволяет устанавливать ее в ограниченном пространстве, максимально экономя свободное пространство уборной комнаты. Необходимое давление в смывном бачке для максимально мощного смывного потока воды создается объемом смывного бачка - полный объем которого составляет 10л! Оболочка из пенопласта защищает его от образования конденсата, а также создает дополнительную шумоизоляцию при наборе воды. Такой тип бачка исключает риск протечки. Механическое управление смыва обеспечивает бесперебойную работу на весь срок службы. Стоит заметить дополнительное удобство данной инсталляции в том, что сервисное обслуживание смывного бачка в случае необходимости осуществляется через окно, находящееся за кнопкой смыва.
Технические данные:
- Диаметр слива: 110 мм
- Монтажная глубина: 120 мм
- Монтажная высота: 1200 мм
- Объем воды для смыва, заводская установка 6 и 3 л (возможна регулировка объема воды малого смыва от 3 до 4,5л, большого смыва от 6 до 7,5л). Общий объем воды в бачке – 10л
- Расчетный расход воды 0,11 л/с
- Минимальное гидравлическое давление для расчетного расхода 0,5 бар
- Бачок из полиэтилена высокой прочности
- Подводка воды сверху
- Кнопка в ассортименте приобретается отдельно
ВНИМАНИЕ: монтажные трубы приобретаются отдельно (код 9910)
Внимание! Производитель оставляет за собой право вносить изменения в конструкцию и комплектацию моделей без предварительного уведомления!
Итальянская марка CeruttiSPA , основанная в середине 90-х годов, является олицетворением элегантности, стиля и непрерывных инноваций. Основной целью компании является разработка современных продуктов для ванной комнаты. В производстве используются передовые технологии, позволяющие производить производить изделия, отвечающие мировым стандартам качества и экологичности.
В течение многих лет CeruttiSPA следовала эволюционным путем, модернизации структуры производства, постоянно инвестируя в технологии, в методы эффективной работы, обеспечивая подготовку технического персонала с целью обеспечения продукта высокого качества.
У нас можно приобрести оригинальную продукцию CeruttiSPA, запчасти и комплектующие.
Также мы предлагаем услуги по монтажу, сервисному обслуживанию и ремонту. Все работы выполняются сертифицированными специалистами с использованием только оригинальных запчастей и расходных материалов.
|
Страна бренда
|
Италия |
|
Ширина, см
|
48.8 |
|
Цвет производителя
|
синий/белый |
|
Стиль
|
Современный |
|
Материал
|
Сталь, ПНД, Пенополистерол |
|
Форма
|
Прямоугольная |
|
Назначение
|
для приставного унитаза |
|
Монтаж
|
Встраиваемый |
|
Конструкция
|
Блочная |
|
Управление
|
Механическое |
|
Режим слива
|
Двухрежимный |
|
Крепление
|
На капитальную стену |
|
Глубина, см
|
12 |
|
Высота, см
|
58.5 |
|
Гарантия
|
10 лет |
|
Комплектация
|
Бачок, крепёжные элементы, монтажные трубы |
|
Штрихкод
|
4657813202594 |
|
Вес, кг
|
6 |
Для покупки товара в нашем интернет-магазине выберите понравившийся товар и добавьте его в корзину. Далее перейдите в Корзину и нажмите на «Оформить заказ» или «Быстрый заказ».
Когда оформляете быстрый заказ, напишите ФИО, телефон и e-mail. Вам перезвонит менеджер и уточнит условия заказа. По результатам разговора вам придет подтверждение оформления товара на почту или через СМС. Теперь останется только ждать доставки и радоваться новой покупке.
Оформление заказа в стандартном режиме выглядит следующим образом. Заполняете полностью форму по последовательным этапам: адрес, способ доставки, оплаты, данные о себе. Советуем в комментарии к заказу написать информацию, которая поможет курьеру вас найти. Нажмите кнопку «Оформить заказ».
Оплачивайте покупки удобным способом. В интернет-магазине доступно 3 варианта оплаты:
1. Оплата товара при получении.
Курьер доставляет Ваш заказ, вы осматриваете товар, подписываете товаросопроводительные документы, оплачиваете заказ, получаете гарантийные талоны и чек. Жители Минска могут рассчитаться как наличными так и пластиковой картой. Для регионов доступна оплата только НАЛИЧНЫМИ.
2. Предоплата картой на сайте при оформлении заказа.
При выборе данного способа оплаты Вы будете перенаправлены на сервис BePaid для совершения транзакции. Курьер доставит Вам уже оплаченный товар, выдаст гарантийный талон и чек.
3. Оплата картами рассрочек при получении курьеру.
Для жителей Минска доступны рассрочки по картам халва/карта покупок/кредитная карта/черепаха. С более подробными условиями можно ознакомиться тут.
В нашем магазине доступно 3 способа получения заказа:
- Доставка курьером по Минску. Диапазон доставки 3 часа.
- Доставка курьерской службой по всей Беларуси осуществляется со вторника по субботу с 8:00 до 18:00. За день до доставки придет смс-уведомление с номером телефоном курьера и временем доставки.
- Самовывоз по адресу Минский район, д. Валерьяново, ул Логойская 20 по будням с 9:00 до 20:00. Обращаем Ваше внимание, возможен самовывоз только ПРЕДОПЛАЧЕННЫХ заказов через платежную систему сайта.
Расскажем в общем на что обратить внимание при выборе инсталляции. Принцип «дешевое хорошим быть не может» при покупке инсталляции актуален как никогда. Стоимость демонтажа вышедшей из строя инсталляции и последующих работ по укладке плитки в разы превышает стоимость самой инсталляции даже хорошего производителя. Надеемся, что наша статья поможет вам сделать правильный выбор.


